№ 1

Комплектация комфорт от
6 200 000 р.
Базовая комплектация от
4 900 000 р.
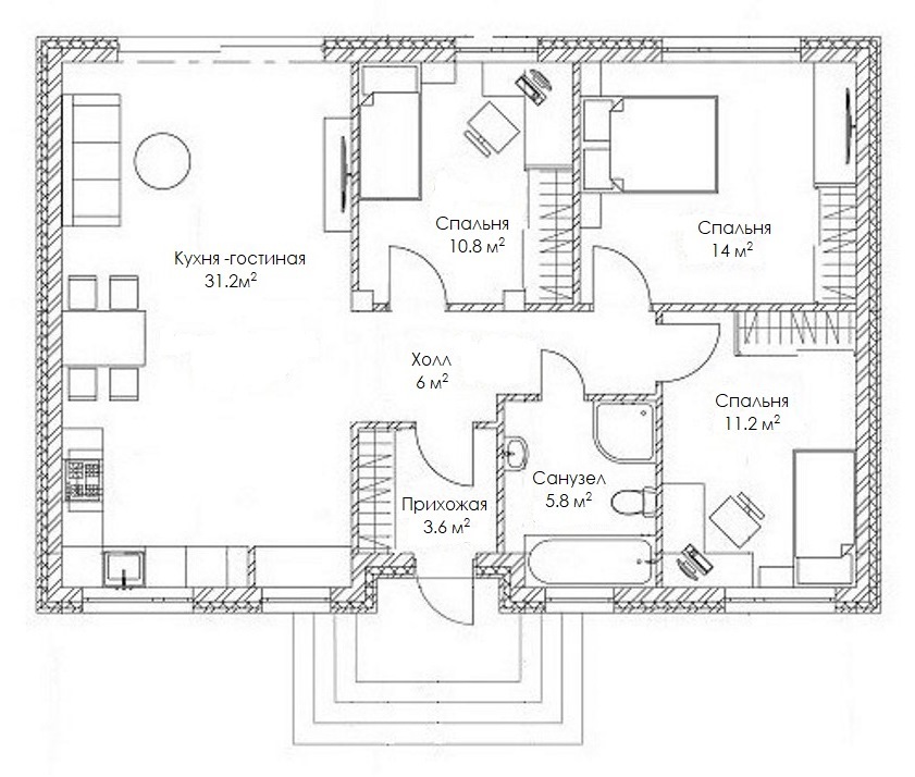
Площадь: 83 кв. м
Планировка
1 этаж: 3 спальни, кухня-гостиная, с/у, прихожая, холл.
Высота потолка 3.20м.
Проект можно изменить и выбрать необходимую комплектацию
Цена строительства дома
Терраса – опция, не входит в стоимость, указанную на сайте.
Комплектации
Комфорт
Базовая
Фундамент
Газобетонный блок
Bonolit D 500
Утеплитель ППС 16Ф
Монолитные ЖБ
Фасадная штукатурка
Металлочерепица
Да
150 мм
Да
Да
Да
Пеноблок Bonolit D 500
100 мм
Да
Да
Да
Да
Да
Да
Гипсовая
Установлен электрический щиток
Разведка временного освещения
Разведено отопление по всему дому
с радиаторами отопления
Да
Да
200 мм
Металлочерепица
Фасадная штукатурка
Монолитные ЖБ
Под перекрытия и мауэрлат
Утеплитель ППС 16Ф
Под перекрытия и мауэрлат
Свайно-ростверковый
Газобетонный блок
Bonolit D 500
Свайно-ростверковый
АрмоПояс
Перекрытия
Утепление наружных стен
Кровля
Отделка фасада
Огнебиозащита
стропильной системы
Утеплитель чердачного
перекрытия Базальт
Снегозадержание трубчатое
Водосточная система
Подшивка кровли Софит
Перегородки межкомнатные
Штукатурка внутренних стен
Электрификация
Отопление
Окна ПВХ
Входная металлическая дверь
Стены
Фундамент
Газобетонный блок
Bonolit D 500
Утеплитель ППС 16Ф
Монолитные ЖБ
Фасадная штукатурка
Металлочерепица
150 мм
Да
Да
Да
Да
Да
Да
Под перекрытия и мауэрлат
Свайно-ростверковый
АрмоПояс
Перекрытия
Утепление наружных стен
Кровля
Отделка фасада
Огнебиозащита
стропильной системы
Утеплитель чердачного
перекрытия Базальт
Снегозадержание трубчатое
Водосточная система
Подшивка кровли Софит
Окна ПВХ
Входная металлическая дверь
Стены
Фундамент
Да
Пеноблок Bonolit D 500
100 мм
Да
Да
Да
Гипсовая
Установлен электрический щиток
Разведка временного освещения
Разведено отопление по всему дому
с радиаторами отопления
Да
Да
200 мм
Металлочерепица
Фасадная штукатурка
Монолитные ЖБ
Утеплитель ППС 16Ф
Под перекрытия и мауэрлат
Газобетонный блок
Bonolit D 500
Свайно-ростверковый
АрмоПояс
Перекрытия
Утепление наружных стен
Кровля
Отделка фасада
Огнебиозащита
стропильной системы
Утеплитель чердачного
перекрытия Базальт
Снегозадержание трубчатое
Водосточная система
Подшивка кровли Софит
Окна ПВХ
Входная металлическая дверь
Перегородки межкомнатные
Штукатурка внутренних стен
Электрификация
Отопление
Стены
Что влияет на стоимость дома
Перепады на участке
Изменение архитектурных решений
Изменение материалов
Расположение объекта
Наличие грунтовых вод
Объем работ на участке
(планировка участка, удаление деревьев, снос построек)
Рассчитать ипотеку
*Расчёт условий не является публичной офертой. Финальные условия кредитования определяются при заключении договора. Банк вправе отказать в выдаче ипотеки без объяснения причин.
Ежемесячный платеж
*Расчёт условий не является публичной офертой. Финальные условия кредитования определяются при заключении договора. Банк вправе отказать в выдаче ипотеки без объяснения причин.
Ежемесячный платеж
Отправить
Заполните заявку и мы перезвоним вам
Made on
Tilda