№ 7

Площадь: 168,3 кв. м
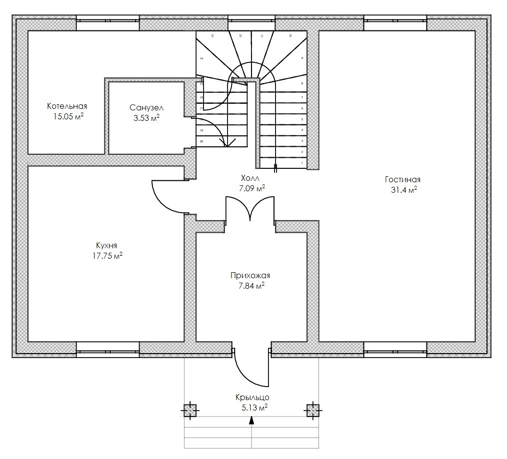
Планировка
1 этаж: гостиная, кухня, с/у, прихожая, холл, большая котельная, крыльцо.
2 этаж: 3 спальни, 2 с/у, просторный холл.
Высота потолка 1-го этажа 3.2 м., 2-го этажа 3.0 м.
Комплектация комфорт от
Базовая комплектация от
Проект можно изменить и выбрать необходимую комплектацию
Цена строительства дома
9 200 000 р.
7 500 000 р.
Комплектации
Комфорт
Базовая
Фундамент
Газобетонный блок
Bonolit D 500
Утеплитель ППС 16Ф
Монолитные ЖБ
Монолитная ЖБ
Фасадная штукатурка
Металлочерепица
Да
150 мм
Да
Да
Да
Пеноблок Bonolit D 500
100 мм
Да
Да
Да
Да
Да
Да
Гипсовая
Установлен электрический щиток
Разведка временного освещения
Разведено отопление по всему дому
с радиаторами отопления
Да
Да
200 мм
Металлочерепица
Фасадная штукатурка
Монолитная ЖБ
Монолитные ЖБ
Под перекрытия и мауэрлат
Утеплитель ППС 16Ф
Под перекрытия и мауэрлат
Свайно-ростверковый
Газобетонный блок
Bonolit D 500
Свайно-ростверковый
АрмоПояс
Перекрытия
Утепление наружных стен
Лестница
Кровля
Отделка фасада
Огнебиозащита
стропильной системы
Утеплитель чердачного
перекрытия Базальт
Снегозадержание трубчатое
Водосточная система
Подшивка кровли Софит
Перегородки межкомнатные
Штукатурка внутренних стен
Электрификация
Отопление
Окна ПВХ
Входная металлическая дверь
Стены
Фундамент
Газобетонный блок
Bonolit D 500
Утеплитель ППС 16Ф
Монолитные ЖБ
Монолитная ЖБ
Фасадная штукатурка
Металлочерепица
150 мм
Да
Да
Да
Да
Да
Да
Под перекрытия и мауэрлат
Свайно-ростверковый
АрмоПояс
Перекрытия
Утепление наружных стен
Лестница
Кровля
Отделка фасада
Огнебиозащита
стропильной системы
Утеплитель чердачного
перекрытия Базальт
Снегозадержание трубчатое
Водосточная система
Подшивка кровли Софит
Окна ПВХ
Входная металлическая дверь
Стены
Фундамент
Да
Пеноблок Bonolit D 500
100 мм
Да
Да
Да
Гипсовая
Установлен электрический щиток
Разведка временного освещения
Разведено отопление по всему дому
с радиаторами отопления
Да
Да
200 мм
Металлочерепица
Фасадная штукатурка
Монолитная ЖБ
Монолитные ЖБ
Утеплитель ППС 16Ф
Под перекрытия и мауэрлат
Газобетонный блок
Bonolit D 500
Свайно-ростверковый
АрмоПояс
Перекрытия
Утепление наружных стен
Лестница
Кровля
Отделка фасада
Огнебиозащита
стропильной системы
Утеплитель чердачного
перекрытия Базальт
Снегозадержание трубчатое
Водосточная система
Подшивка кровли Софит
Окна ПВХ
Входная металлическая дверь
Перегородки межкомнатные
Штукатурка внутренних стен
Электрификация
Отопление
Стены
Что влияет на стоимость дома
Перепады на участке
Изменение архитектурных решений
Изменение материалов
Расположение объекта
Наличие грунтовых вод
Объем работ на участке
(планировка участка, удаление деревьев, снос построек)
Рассчитать ипотеку
*Расчёт условий не является публичной офертой. Финальные условия кредитования определяются при заключении договора. Банк вправе отказать в выдаче ипотеки без объяснения причин.
Ежемесячный платеж
*Расчёт условий не является публичной офертой. Финальные условия кредитования определяются при заключении договора. Банк вправе отказать в выдаче ипотеки без объяснения причин.
Ежемесячный платеж
Отправить
Заполните заявку и мы перезвоним вам
Made on
Tilda